• DE
  • EN
Navigation überspringen
  • IMPRESSUM
  • KONTAKT
  • AKTUELLES
 

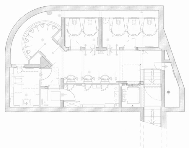
WC-ANLAGE AM SPANDAUER-MARKT

 

Am Standort der alten in einer Wanne
liegenden unterirdischen Anlage wurde eine
hochmoderne öffentliche Toilettenanlage
erstellt.


Der Glasaufzug gewährleistet die
behindertengerechte Nutzung.


Das aus der ReiseFrische hervorgegangene
Glas-Sanitärsystem Cristallo wurde für die
Wall AG in blauem Glas hergestellt.

Auftraggeber Wall AG, Berlin

 

zurück

WAL2

Seite 2 von 8

  • Zurück
  • 1
  • 2
  • 3
  • 4
  • 5
  • 6
  • 7
  • Vorwärts
  • Ende »
  • PROJEKTE
    • Innenarchitektur
    • Produktdesign
    • Ausstellungen
  • PROFIL
    • Vita
    • Philosophie
  • REFERENZEN